Notice: Undefined index: HTTP_ACCEPT_LANGUAGE in /data/sites/web/micasabe/www/site/assets/cache/FileCompiler/includes/header.php on line 5
Startplan 160m² Selección

Kijkwoning Hansbeke.

De kijkwoning is enkel OP AFSPRAAK te bezoeken.

Kijkwoning Hansbeke.

Blijf op de hoogte

Schrijf u hier in op onze nieuwsbrief, zo wordt u op de hoogte gehouden van het belangrijkste Mi Casa nieuws.

Inschrijven

Een pasklaar plan naar behoefte.

Volle verdieping

Selección biedt de oplossing voor mensen die niet van scratch willen starten. Bij het ontwikkelen kozen we voor dezelfde hoogstaande kwalitatieve materialen die elke Mi Casa uniek maken.

Selección bestaat uit zes plannen, elk met een verschillende bewoonbare oppervlakte (van 145 m² tot 270 m², nog zonder de zolder mee te tellen). 

De klant krijgt zo de mogelijkheid om het plan te kiezen dat het bést op zijn/haar noden aansluit. Dat alles in onze gekende Long Island-stijl. Benieuwd naar de indeling? Neem dan een kijkje hieronder. Bovendien kunt u zelfs nog de zolderruimte inrichten met extra slaap -en/-of badkamers, of er een hobbyruimte voorzien.

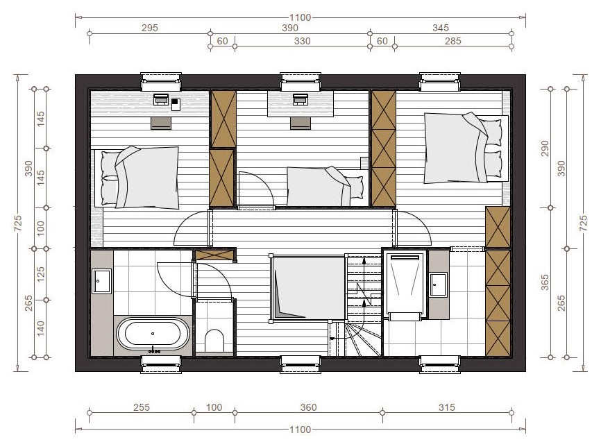
Selección 160.

Grondplan.

vanaf € 357 700 excl. btw - 160 m²

Ons allereerste basisplan ooit, nu nog meer geperfectioneerd. De ideale oppervlakte voor wie een middelgrote woning ambieert.

Grondplan.
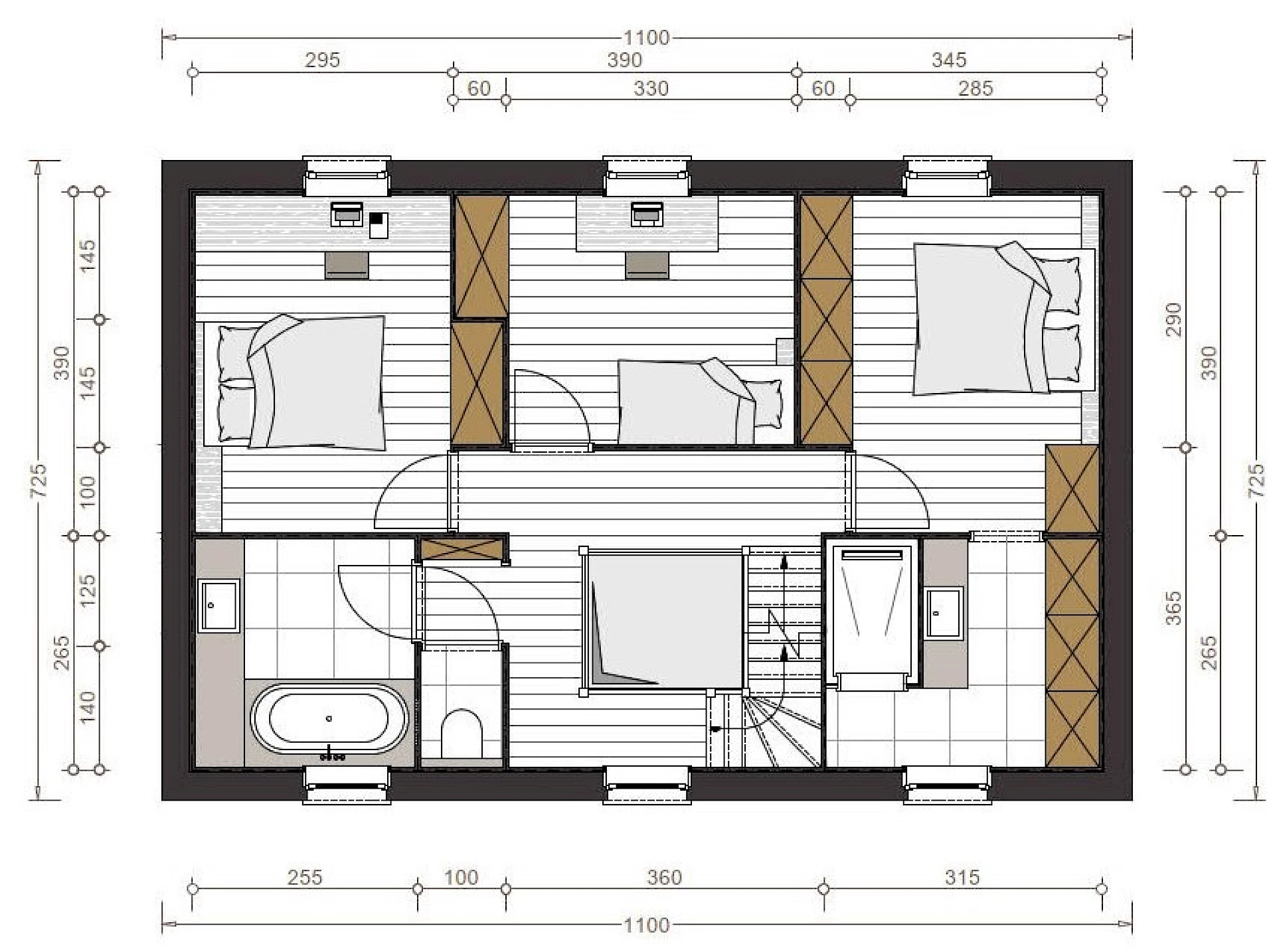
Selección 160.

Verdiepingsplan.

vanaf € 357 700 excl. btw - 160 m²

Ons allereerste basisplan ooit, nu nog meer geperfectioneerd. De ideale oppervlakte voor wie een middelgrote woning ambieert.

Verdiepingsplan.
Your browser is out-of-date!

Update your browser to view this website correctly. Update my browser now

×